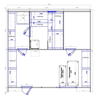
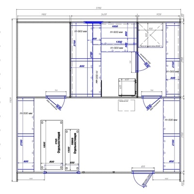
Баня Квадро-Хаус «6×6» четыре помещения
1 212 990 ₽
Баня Квадро-Хаус «6×6» имеет четыре больших помещения и с легкостью может разместить компанию. В данной модели Вы можете организовать полноценное помывочное отделение. За счет формы баня обеспечит быстрый прогрев помещений даже зимой. Баня устанавливается бригадой сборщиков за два дня.
-
Рассчитайте комплектацию и стоимость
Вы можете сделать точный расчет стоимости бани и сделать заказ самостоятельно. Нажмите на каждый пункт для выбора опций.
Выберите условия поставки
Выберите материал
Выберите вход
Выберите планировку
Выберите межкомнатную дверь
Выберите тип печи
-
Grill’D Cometa Vega Long Window Max + проходной узел
Grill’D Cometa Vega 180 Long Window Max с внешней топкой. Русская парная. Масса камней наружной каменки – 75 кг. Масса камней внутренней каменки – 30 кг
Дополнительно к печи
Баки и опции
-
Сетка для камней L700 с камнями. В базовой комплектации бани.
Выберите окна
При установке панорамной группы для исключения ее запотевания необходимо установить конвектор для обогрева - плинтусный обогреватель.-
Окно 600х600
Выберите окна для установки в стене бани
Выберите дополнительные опции
Теплый пол
Для обогрева используется инфракрасная система с защитой от перегрева, обеспечивающая быстрый и равномерный нагрев. В качестве напольного покрытия применяется кварц-виниловая плитка (SPC) с текстурой натурального дерева, отличающаяся повышенной износостойкостью и эстетичным внешним видом. Для максимальной энергоэффективности монтаж выполняется на специальную теплоизолирующую подложку. -
Цвета кровли
- +
- +
- +
-
Кухонные модули в комнату отдыха
Напольные шкафы комплектуются столешницами требуемого размера, получаемого из целой столешницы 2400x38x600 мм (фрагменты столешниц уже включены в стоимость напольных шкафов). Смесители и мойки в комплект не входят. Стоимость вычитаемого полка вдоль стены, где будет установлена кухня, уже вычтена из стоимости кухонных модулей. -
-
Светодиодная подсветка полков
-
Индивидуальные изменения
-
Reset options
*Выберите комплектацию
-
Выберите цвет внешней обработки и количество слоев
Количество слоев внешней обработки
Цвет внешней обработки
Цвет торцов и наличников
Описание
- Еловый или кедровый профиль толщиной 42х92 мм, влажностью 10%
- Основание под баню из поперечных лаг 50х150 мм с возможностью последующего утепления (в случае не использования проливных полов)
- Пол из доски с возможностью замены
- Основание под баню (деревянные ножки)
- Внешняя обработка антисептиком в один слой (при поставке изделия в готовом виде или со сборкой на участке)
- Крыша из гибкой черепицы Döcke PIE или Технониколь до самого низа. Цвет коричневый

- Дровяная печь Grill’D Cometa Vega Long Window Max
- Пожаробезопасное многослойное основание-сэндвич под печь из нержавеющей стали, минерита и базальтового картона
- Защита от нагрева из минерита
- Камни для печи (в подарок)

- Дымоход в сборе
- Проходной узел под дымоход из нержавеющей стали, термоизоляции, резинового уплотнителя с хомутом

- Входная дверь ПВХ 1800х700 (черная ламинация)
- Стеклянная тонированная дверь 1800х605 в парилку
- Стеклянная тонированная дверь 1800х605 в моечное отделение
- Стеклянная тонированная дверь 1800х605 в спальню
- Полы на лагах с уклоном в сторону от печи из доски с возможностью замены
- Четыре сливных отверстия в нижней точке, закрываемые клапанами. Отверстия между собой соединены фрезерованным в полу пазом глубиной 10 мм
- Угловой полок из липы или осины
- Окно 600х600 мм
- Светильник банный IP54
- Полы на лагах (возможен уклон) из доски с возможностью замены
- Полки из липы или осины согласно схеме расположения
- Стол
- Окно ПВХ 1250х980 мм (черная ламинация)
- Светильник банный IP54 — 2 шт.
- Розетка
- Выключатель
- Полы на лагах из доски с возможностью замены
- Светильник банный IP54 – 1 шт.
- Розетка
- Выключатель
- Полы на лагах с уклоном в сторону от печи из доски с возможностью замены
- Два сливных отверстия в нижней точке, закрываемые клапанами. Отверстия между собой соединены фрезерованным в полу пазом глубиной 10 мм
- Полки из липы или осины согласно схеме расположения
- Светильник банный IP54
Детали
| Количество помещений | 4 |
|---|---|
| Длина козырька/крыльца | 200 мм |
| Общая длина (наружный размер) | 5929 мм |
| Высота | 2830 мм |
| Ширина | 5990 мм |
| Вес | 2980 кг |




